Bison Run plans continue to move along
Advertisement
Hey there, time traveller!
This article was published 09/10/2024 (373 days ago), so information in it may no longer be current.
The Assiniboia community committee held a regular meeting on Sept. 27, discussing and approving multiple plans for large-scale developments in west Winnipeg.
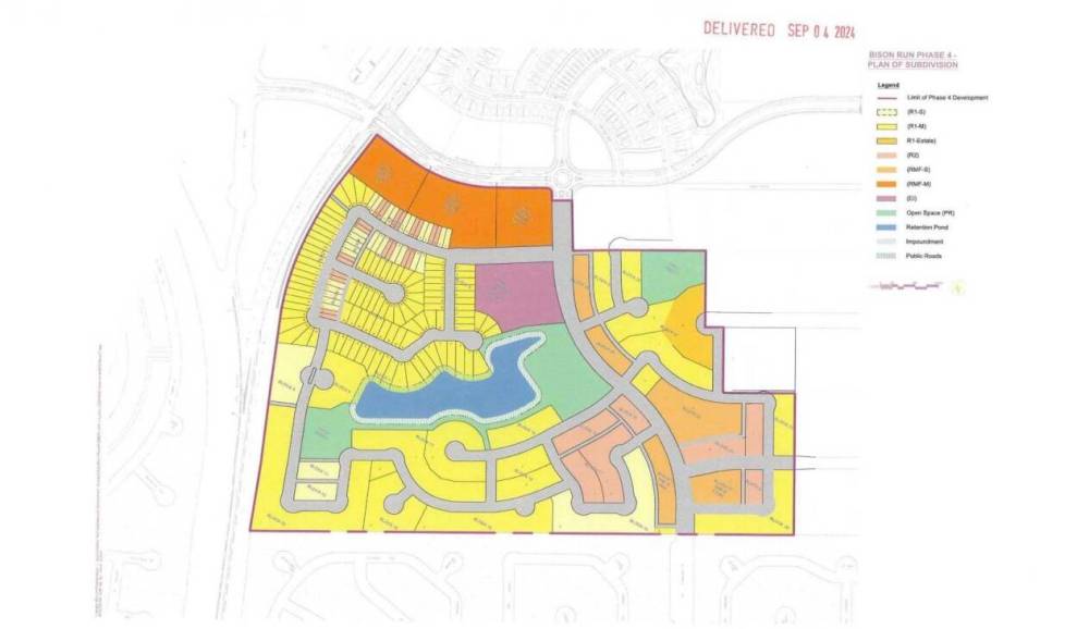
Bison Run, a proposed development in the Waverley West neighbourhood, moved further along when the next phase of plans — for subdivision and rezoning of a lot east of Kenaston Boulevard and south of Joe Keeper Way — was approved.
Although the land the project will sit on is vacant, the project will require the closing of portions of three residential streets — Madina Avenue, Lee Boulevard and Formby Avenue — to make way for houses and outdoor neighbourhood commodities.

Supplied image
Bison Run, an ongoing community development in the Waverley West neighbourhood, will — when completed — spread across 200 acres of land. Subdivision and rezoning for phase 2 of the project was approved by the Assiniboia community committee recently.
Referred to as “a continuation of a very, very positive development for the community,” by Coun. Janice Lukes (Waverley West) the community will, at completion, contain 191 residential lots, including single- and-multi-family homes, accompanied by commercial buildings, over four projected neighbourhoods. Overall, Bison Run consists of 200 acres of land, extending from Kenaston Boulevard to Frontier Drive. The area is just east of Bridgwater.
Phase 1 has been in development since land was purchased by Qualico, its developer, in 2015, and phase 2 was announced in November of 2023. According to the site map, which can be viewed at bisonrun.qualicocommunities.com, the houses will be accompanied by two ponds and separated from phase 1 by a recreational field, as well as Bison Run School and Pembina Trails Collegiate. The new site will also include an active transportation network which connects to phase 1 and surrounding neighbourhoods.
Bison Run operates on a basis of ‘building new’ – giving future homeowners in the space a chance to buy their lots, choose one of nine builders, and create a custom home from scratch,as long as they adhere to the architectural standards for the neighbourhood. A number of lots in the new phase have already been purchased.
The committee held a hearing, but no one was registered in opposition to the plan.
Plans for two proposed apartment developments were also approved — one at 1555 Lee Blvd. and another at 696 Sterling Lyon Pkwy.
If completed, plans for 1555 Lee Blvd. call for three buildings on one lot. Two of these will be six storeys tall, with the other only reaching three. Overall, the development will create 131 residential units. The site will also contain 174 parking stalls, 102 of these underground. Trees and shrubs will be planted, and the area will be accessible by both car and foot.
The development at 696 Sterling Lyon Pkwy. will contain 153 units overall, split between two buildings.
Councillors expressed some hesitation over 217 above-ground parking spots at this site, which may create a “concrete jungle” look. Trees and shrubs will be planted on this site, as well, and it will be closely connected to active and public transportation routes in the surrounding area.
Currently, the 19.1 acre subject lot is the home of the Rec Room, an arcade and entertainment venue. If plans are accepted, it will be rezoned.

Emma Honeybun is a reporter/photographer for the Free Press Community Review. She graduated RRC Polytech’s creative communications program, with a specialization in journalism, in 2023. Email her at emma.honeybun@freepress.mb.ca
Our newsroom depends on a growing audience of readers to power our journalism. If you are not a paid reader, please consider becoming a subscriber.
Our newsroom depends on its audience of readers to power our journalism. Thank you for your support.